3 months ago • Public • Project
• Forwardable
Bookarcho Official Featured
Forest Cube
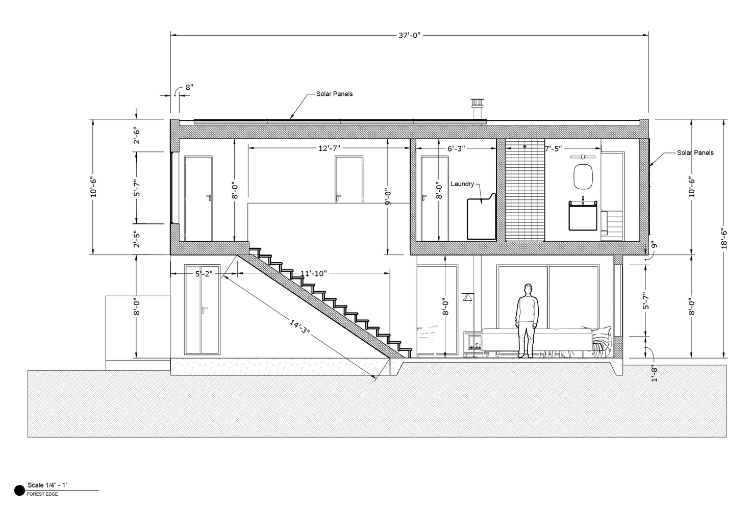
The Forest Edge house is the fifth solar-powered house built by Edifice Upstate in the West Catskills of New York State. The house is designed by award-winning architect and designer Marc Thorpe. The house is a 1500 sqft two-story, 3 bedrooms, 2 full baths, powered completely by solar energy.
Project Details
Architects
MARC THORPE DESIGN
Location
ROSCOE
Category
RESIDENTIAL
Type
CONSTRUCTION
Area
1800
Budget
3340000
Client
SANDRA JOSEPHINE
Photography
TOMCY BENNY
#Minimal
#Sustainable
#Wood
#Metal
#
Interior
The architecture is an internalized place defined by the harmony of our existence with nature. In this sense, architecture becomes timeless. The work transcends the physical realm to become part of us, holistic, balanced, and eternal.
Check out attachements!
Xg0Y55fQHCKzGLXaFJLfyL1bQZWfCfA1BNCAoKQ4.jpg
14md6JpHYSc0xB9QWNWGLezBuU8twJuicy7mTuXF.jpg
XWNBDdeFwHXDhkLX346yS500AdFisCHggQPTHfW9.jpg
duFbYOviDQzNKY0TbBKUEdbsEqRoWjKSBeh7a8AX.jpg
Us2UhBhxIIoZpwJxvLZ1haLEDjLGl4CJs3VoXRE9.jpg
OBGNUHaJ0OmDSYPhU8iOWuUqJq46j6CU5Y2oeu01.jpg
Please Login to comment.